Bachelor Thesis 2025
Aufgabenstellung
«Regionale Mittelschule EMS Schiers»
Im Rahmen der Bachelor Thesis in Architektur 2025 setzten sich die Studierenden mit den spezifischen Rahmenbedingungen des Ortes Schiers auseinander. Du erarbeitetest einen Bebauungsvorschlag für die Umsetzung und Erweiterung der regionalen Mittelschule EMS Schiers.
Teil der Aufgabe war es, ein gesamtheitliches Belegungs- und Raumkonzept auf dem Schulareal zu finden. Zudem musstest du eine architektonisch qualitative Formulierung zur Funktionalität und zum Raumbedarf, zur Atmosphäre und zur Bauweise entwickeln. Die Bachelor Thesis war somit ein korrespondierender Projektvorschlag für die Umnutzung und Erweiterung der regionalen Mittelschule EMS – die Entwicklung eines hochwertigen Bauprojekts.
Neben dem gestalterischen stimmungsvollen Entwurf lag der Fokus in der Bachelor Thesis zudem auf der konstruktiven Umsetzung des Projekts: Unter realistischen Rahmenbedingungen waren Überlegungen und Massnahmen für eine ökonomische, ökologische und energetisch sinnvolle Ausführung gefragt.
Für die Lösung der Bachelor Thesis «EMS Schiers» waren unterschiedliche Lösungsansätze denkbar: Im Rahmen der Aufgabenstellung waren die baulichen Interventionen sowohl als Umbauten und/oder Ersatzneubauten möglich. Unabhängig des Lösungswegs lag der Schwerpunkt der Arbeit auf der überzeugenden Entwurfsidee und die daraus folgende Entwicklung eines architektonisch qualitativ gestalteten Projekts.
Die Bachelor Thesis fasste sämtliches im Studium erworbene Wissen zusammen. Sie half den Absolventinnen und Absolventen, eine eigene architektonische Haltung zur Aufgabe, zum Programm und zum Ort zu entwickeln.
Die Bachelor Thesis erfolgt jeweils komplett in Eigenverantwortung und wird – bis auf die drei Zwischenkritiken – selbständig erarbeitet.
Chiara Auer: Verdichtung als Chance
Das historische Schul-Ensemble der EMS Schiers soll funktional erweitert und an heutige Anforderungen angepasst werden. Das Projekt «Verdichtung als Chance» ergänzt das Areal durch zwei Anbauten, wobei Altbau und Steinbau erhalten bleiben. Verwaltungsräume werden im Altbau gebündelt, Geschossdecken entfernt und das Dachgeschoss zu einem grosszügigen Konferenzraum mit Dachterrasse ausgebaut.
Der Zwischenbau wird barrierefrei und erhält Nebenräume sowie WC-Anlagen. Im Steinbau entstehen offene Arbeitszonen, Klassenzimmer, Gruppenräume und ein Pausenraum mit Schülercafé. Der Westbau erhält einen dreigeschossigen Anbau mit Lernatelier, Klassenzimmern, Gruppen- und Vorbereitungsräumen. Der Ostbau einen eingeschossigen Mehrzweckraum mit mobilen Trennwänden.
Einheitliche Holz- und Glasflächen verbinden Alt- und Neubauten, stärken die Lesbarkeit des Ensembles und schaffen eine flexible, nachhaltige Schularchitektur, die historische Werte wahrt und moderne Lernformen ermöglicht.
Gian Sutter: Strukturen weiterbauen – Kontext bewahren
Das Schulareal der EMS in Schiers liegt am Rand des alten Dorfkerns, hinter dem sich freie Landschaft öffnet. Die bestehende Zwischenzeile wird neu gefasst, um den Altbau räumlich und funktional ins Zentrum zu rücken.
Durch gemeinschaftliche Nutzungen wie Gruppenräume, Lernlandschaften oder Konferenzräume wird der Altbau als kulturelles Herz des Areals gestärkt. Der Neubau respektiert die heterogene architektonische Sprache, übernimmt die Staffelung der Gebäudehöhen und ergänzt die bestehende Vielfalt.
Freiräume und Platzbereiche bleiben flexibel nutzbar, die Durchlässigkeit der Baukörper wird bewusst inszeniert, und die Besonnung berücksichtigt. Ziel ist ein lebendiges, differenziertes Ensemble, das Alt- und Neubau sinnvoll verbindet und die Aufenthaltsqualität verbessert.
Felix Flaig: Mehr lernen auf gleichem Fussabdruck
Das Schulareal der EMS in Schiers soll funktional und räumlich modernisiert werden, ohne seinen historischen Charakter zu verlieren. Um den baulichen Fussabdruck nicht zu vergrössern, wird das bestehende Mensagebäude überbaut. Die Setzung stärkt den zentralen Grünraum zwischen Fluryhaus und Altbauten und schafft zwei differenziert nutzbare Aussenräume: einen urbanen Pausenplatz und eine landschaftlich geprägte Lernwiese.
Die Terrasse zwischen West- und Altbau wird als Erweiterung der Lernlandschaft aktiviert. Bestehende Gebäude (Steinbau, Altbau, Zwischenbau) werden restauriert, vereinheitlicht und architektonisch ergänzt. Die Mensa erhält barrierefreie Zugänge, ein neues Treppenhaus und zwei zusätzliche Obergeschosse für Klassenzimmer und Gruppenräume. Mobile Wandsysteme ermöglichen flexible Unterrichtsformate.
Die Altbauten werden barrierefrei erschlossen, Raumhöhen angepasst und die Haustechnik modernisiert. Ziel ist ein funktionales, zeitgemässes Schulensemble, das zentrale Strukturen würdigt und die Aufenthalts- und Lernqualität erheblich steigert.
Bachelor Thesis 2024
Aufgabenstellung «Schloss Reichenau»
Schauplatz der Bachelor Thesis 2024 war der unmittelbar nördlich an das Schloss Reichenau angrenzende, weitläufige Wirtschaftsbereich mit mächtigen Stall- und Nebenbauten. Eine zukünftige Umnutzung zu Wohnzwecken sollte dazu beitragen, die stetig wachsenden Unterhalts- und Renovationskosten des Schlosses abzufedern und längerfristig den Erhalt der denkmalgeschützten Anlage sicherzustellen.
In einem ersten Schritt musste ein gesamtheitliches Wohnkonzept erstellt werden. Die Hauptnutzung sollte dabei das Wohnen sein. Untergeordnet sollte es möglich sein, die Anlage allenfalls für Kleingewerbe oder Ateliers nutzen zu können. Es galt, die Gesamt-Volumetrie aller Bauten mit Balkonen, Loggien, Dachaufbauten, Ersatzbauten, Aufstockungen und Erweiterungen anzudenken. Dies unter Berücksichtigung und Würdigung des Bestandes.
Die wesentlichen Eckpunkte für den zu entwickelnden, ortsbaulichen Vorschlag waren die Ensemblewirkung, die Zugangssituation in den Wirtschaftshof, die Aussenraumqualität oder das Spannungsfeld zwischen Wohnnutzung und Denkmalschutz. Zudem mussten die Studierenden die Stimmung und den Charakter sowie den Bezug der Anlage zur darüberliegenden Siedlung Tamins und das Zusammenspiel mit der Schlossanlage berücksichtigen.
Neben dem gestalterischen und stimmungsvollen Entwurf lag der Fokus der Aufgabe auch auf seiner konstruktiven Umsetzung. Unter realistischen Rahmenbedingungen waren Überlegungen und Massnahmen für eine ökonomische, ökologische und energetisch sinnvolle Ausführung gefragt.
Die Bachelor Thesis führte sämtliches im bisherigen Studium erarbeitete Wissen zusammen. Durch die Projektarbeit haben die Studierenden eine eigene architektonische Haltung zur Aufgabenstellung, zum Programm und zum Ort entwickelt. Sie erledigten die Bachelor Thesis komplett in Eigenverantwortung und erarbeiteten sie neben den drei Zwischenkritiken selbständig.
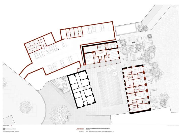
Ivo Oertli: Wirtschaftshof Schloss Reichenbau
Bei den bestehenden Ställen werden je nach Stellung verschiedene Lösungen gesucht. Der nördliche Stall wird zu einem Geschosswohnbau umgenutzt, wobei im Erdgeschoss eine öffentliche Nutzung und ein Gemeinschaftsraum angelegt sind.
Der östliche Stall hat eine andere städtebauliche Voraussetzung. Er ist nicht zentral, sondern peripher angeordnet. Er bildet die Brücke zwischen Obsthain und Platz. Diese Verbindung definiert die Typologie im Grundriss. Als Maisonette resp. Reihenhaussiedlung angelegt, funktionieren diese Wohnungen hauptsächlich über den Schnitt. Während das Essen im Erdgeschoss zum Grünraum führt, liegt das Wohnen diagonal versetzt zum Platz hin – ein vertikal versetztes Durchwohnen entsteht.
Die Neubauten sind ebenso divers wie die bestehenden Bauten. Das grössere Volumen, der Rheinhof, ist als Geschosswohnbau gedacht, der Wohnungen von 4.5 Zimmern bis 2.5 Zimmern beherbergt. Die Maisonettewohnungen im kleineren Volumen, dem Waldhof, sind zum Platz hin ausgerichtet, verfügen jedoch über einen eigenen Aussenraum seitlich der Essräume. Neben den Maisonettewohnungen findet sich ein kleiner Pavillon als Co-Working-Raum oder Waschküche.
Ruth Hermann: Hofumrahmung «Kabinett»
Die neue Nutzung im Hof ist ergänzend zu der im Schloss und konkurrenziert diese nicht. Als Beitrag zu den grossen Veranstaltungen im Schloss, wie Theater oder Vernissagen, bietet der Hof einen Proberaum. Es entsteht ein Treffpunkt für Gruppen und Vereine. Der existierende Landwirtschaftsbetrieb des Schlosses wird durch einen kleinen Hofladen inklusive eines vorgelagerten Gartens ergänzt, damit die regionalen Produkte direkt vor Ort erhältlich sind. Der intime Aussenraum bildet ein Gemeinschaftsgarten, der nur den Bewohnern zur Verfügung steht.
Die Wohnnutzung im Wirtschaftshof ist für Familien und Paare vorgesehen. Aus diesem Grund sind grosse bis mittelgrosse Wohnungen geplant. Ergänzt werden die bisherigen Stallungen durch einen nordseitigen Neubau an der Hangkante, der als Holzbau in Erscheinung tritt und somit den Charakter eines Nebenbaus hat. Er beinhaltet Atelierwohnungen, die ein kreatives Publikum ansprechen und flexibel zum Wohnen oder Arbeiten genutzt werden können.
Salome Wüst: Dreierlei Höfe
In Zukunft wird das Areal um den Wirtschaftshof umgenutzt. Es sollen Wohnungen und einige Räume für das Kleingewerbe entstehen. Die räumliche Bildung eines Hofes hat in der bestehenden Struktur eine hohe Bedeutung und wird im neuen Konzept aufgenommen. Drei Höfe bilden neu die Mittelpunkte des Areals. Jedem Hof wird eine Nutzung zugeschrieben. Der heutige Wirtschaftshof wird zu einem Familienhof umgestaltet. Ergänzend dazu wird ein neuer Gewerbehof und ein Kräuterhof erstellt. Auf dem Areal entstehen Wohnungen in diversen Grössen, ein Kräuterhaus und Räume für das Kleingewerbe.
Die sozialen Begegnungen im ehemaligen Wirtschaftshof sind im Konzept sehr wichtig. Durch die drei Höfe werden Begegnungsräume geschaffen, die Klein und Gross nutzen können. Die unterschiedlichen Nutzungen der drei Höfe ermöglichen ein Zusammenspiel zwischen Arbeiten und Wohnen. Diese Durchmischung von Nutzungen beleben das Areal über den ganzen Tag hinweg.
Bachelor Thesis 2023
Casa Vinavon, Ilanz
Die Aufgabe der Bachelor Thesis Architektur 2023 bestand in der Ausarbeitung eines Bebauungsvorschlages für die Neunutzung der Casa Vinavon. Es sollte ein Gesamtkonzept für die angedachten neuen Nutzungen erarbeitet werden. Dieser auszuformulierende Vorschlag sollte aufzeigen, mit welchen räumlichen, funktionalen und architektonischen Mitteln das neue Projekt einen Mehrwert für den Ort und die ausgesuchte Nutzung bringen kann. Gesucht wurde eine überzeugende Projektidee für die Stärkung des Klosterareals, der Stadt Ilanz und der gesamten Surselva. Um dies zu erfüllen, bedingte die Aufgabe ein Gesamtkonzept, das von der präzisen Setzung von Volumen, über das geschickte Ordnen von Räumen, bis hin zum bewussten Umgang mit Materialien verfügte. Die Gestaltung eines Gesamtkonzepts beinhaltete nebst dem Bauprojekt auch die Auseinandersetzung und die Schaffung eines für das Projekt spezifischen, qualitativen Aussenraumes. Nebst den funktionalen Anforderungen wurde beim Projekt der Bachelor Thesis ein hohes Mass an spürbarem Gestaltungswillen erwartet.
Für die Projektbearbeitung der Bachelor Thesis zur Casa Vinavon in Ilanz waren unterschiedliche Lösungsansätze denkbar. Im Rahmen der Aufgabenstellung waren die baulichen Interventionen sowohl, als Umbauten und/oder Neubauten möglich. Unabhängig, welcher Lösungsweg verfolgt wurde, liegt der Schwerpunkt der Arbeit auf der überzeugenden Entwurfsidee und die daraus folgende Entwicklung eines architektonisch qualitativ gestalteten Projektes.
Arno Zarn: Unterkunft für Schutzsuchende
Das bestehende Gebäude wird zur Unterkunft für minderjährige Asylsuchende (UMAS). Zusätzliche wird für Familien, Wohngemeinschaften sowie Einzelpersonen mittels eines Neubaus neuer Wohnraum realisiert. Mit der Nähe der Familien zu den unbegleiteten Minderjährigen kann eine Atmosphäre des Vertrauens und der Fürsorge entstehen.
Der Neubau wird auf der Geländekante vor dem bestehenden Gebäude platziert. Es werden zwei Platzsituationen gebildet, welche von den Bewohnern genutzt und bespielt werden können. Durch die Setzung des neuen Volumens entsteht aus einem Haus ein Ort.
Der Neubau orientiert sich an Klein- und Kleinstwohnungen mit einer Laubengangerschliessung. Die Wohnungen sind zum gemeinsamen Aussenraum ausgerichtet. Durch die, im Bestandesbau untergebrachten Aufenthaltsräume und Waschküche wird der Austausch zwischen den Familien und den UMAS gefördert.
Sofia Velti: Casa Da Musica
Mit der Casa Da Musica Ilanz wird ein Ort zum Lehren, Lernen, Üben und Erleben geschaffen. Musik ist eine vielfältige Kunst, die Menschen jeden Alters anspricht. Da sie unsere Spiritualität berührt, passt sie als Thema zur besonderen Lage in der Nähe des Klosters. Das Thema der Ausbildung verweist auf die Geschichte der Casa Vinavon. Die neue Nutzung ist in Synergie mit dem Kloster und der Klosterkirche konzipiert und zusammen bilden sie eine abwechslungsreiche musikalische Bühne.
Das Gebäude entwickelt sich vertikal mit einem hierarchischen Konzept. Üben (Probelokale), Studieren (Kursräume), Inszenieren (Konzerthallen) und Verwalten (Büros). Im UG gibt es einige Probelokale. Im EG gibt es die Kursräume der Musikschule. Die gastronomische Nutzung wird beibehalten und durch eine Terrasse erweitert. Im OG1 befinden sich die Gesangsschule und ein Vorbereitungsraum für Musiker, der mit der neuen Konzerthalle verbunden ist. Im OG2 befinden sich die Kapelle und die Konzerthalle mit einer Vorzone. Im OG3 befindet sich der Steuerungsraum der Konzerthalle und die Büros. Die Nasszellen befinden sich auf jeder Etage neben dem neuen Treppenhaus. Die Treppe verbreitet sich wie ein Trichter, um den Menschenfluss zu führen. Die rote Farbe das Treppenauge schaffen eine dramatische Atmosphäre. Im Garten wird einen "Parc da Musica" für die kleinsten erstellt. Im Süden der Parzelle wird eine Aussenbühne für Alphörner erstellt.
Moreno Spadin: Gemeinschaftliches Leben in Wohnlandschaft
Die Casa Vinavon steht an bevorzugter Wohnlage mit viel Sonne und Aussicht. Im Geiste der Bauherrschaft, dem Dominikanerinnen-Kloster, wird für die Casa Vinavon eine neue Wohnform vorgeschlagen, welche das Gemeinschaftliche ins Zentrum rückt – Clusterwohnungen.
Der bestehende Massivbau wird mit einem neuen Holzbau überstülpt. Richtung Tal entsteht eine neue Gebäugeschicht. Die Wohnungstypologie fördert das gemeinschaftliche Leben. Pro Geschoss steht der grosszügige, mäandernde Gemeinschaftsraum im Zentrum. Dieser nimmt verschiedene Funktionen auf (Teeküchen, TV-Raum, Bibliothek, Kinderspielorte, Garderoben).






















































